Bira fabrikaları veya mandıralar gibi yüksek drenaj kapasitesi gerektiren endüstriyel uygulamalarda ya da drenajın daha kolay temizlenebilmesi için büyük bir drenaj hacmi gerektiren, kir birikiminin fazla olduğu uygulamalarda, DN 100 bağlantı boyutuna sahip zemin drenajları genellikle yetersiz kalmaktadır.
KESSEL, bu tür uygulamalar için hat ve nokta drenajı konusunda geniş bir ürün yelpazesi sunmaktadır. Paslanmaz çelik oluklar veya üst parçalarla birlikte kullanılan taban gövdeleri ve tek parça zemin drenajları, her uygulama alanı için uygun çözümü sunar.
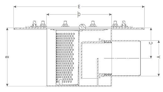
Bu tür uygulamalar için taban gövdelerinin boyutları şöyledir:
Aşağıdaki flanş çeşitleri, kullanılan paslanmaz çelik oluklarda veya paslanmaz çelik bağlantı parçalarında kullanılabilir
- Flanşsız
- Yapıştırmalı flanş, fayanslar için 15 mm flanş yüksekliği
- Yapıştırmalı flanş, zemin kaplamaları için 6 mm flanş yüksekliği
- Yüksek termal yük altındaki kullanım alanları için fayans bağlantı köşebenti

"Almanya’da üretilmiştir" kalitesi
Ferrofix ürün yelpazesinin tamamı Almanya'da Ulm'deki kendi yetkinlik merkezimizde geliştirilmekte ve üretilmektedir. Drenaj sektöründe paslanmaz çelik ürünler için sistem sağlayıcısı olarak 40 yılı aşkın deneyime sahip olan KESSEL Inox'un uzman ekibi, size sofistike bireysel çözümlere kadar güvenilir ve çok yönlü bir hizmet sunmaktadır.





